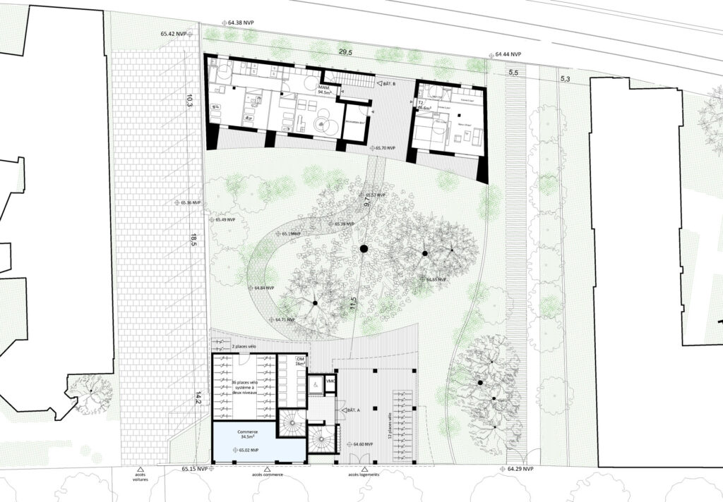
Un projet urbain intégré et durable au cœur du 20e arrondissement
Implanté au 124 rue des Pyrénées, en plein cœur du 20e arrondissement de Paris, le projet s’inscrit dans un contexte urbain dense et contraint, marqué par la proximité des anciennes voies SNCF et la présence d’un Sophora japonica protégé. Ces éléments ont guidé une conception attentive à la volumétrie et aux gabarits.
Le projet se compose de deux entités bâties : un immeuble en hauteur (R+8) aligné sur la rue des Pyrénées, en cohérence avec le tissu urbain existant, et un bâtiment de plus faible hauteur en fond de parcelle. Leur implantation décalée permet de préserver les vues des copropriétés voisines tout en optimisant les orientations et l’ensoleillement des logements.


Confort, intimité et qualité d’usage
L’organisation des logements garantit un haut niveau d’intimité grâce à des espaces extérieurs privatifs, des dispositifs de séparation végétale ou architecturale, et une implantation évitant les vis-à-vis directs. Chaque logement bénéficie ainsi d’un cadre de vie apaisé, en lien avec les qualités paysagères du site.


Une approche paysagère et écologique forte
Le projet valorise le square existant en conservant 8 arbres sur 10, complétés par des plantations indigènes issues du Bassin parisien, peu consommatrices en eau et en entretien. Il propose :
- un cœur d’îlot végétalisé, accessible à tous, favorisant les usages collectifs et la convivialité
- des cheminements piétons limités, incluant une venelle publique
- des stationnements perméables en périphérie, laissant une place prépondérante au végétal
Situé à proximité immédiate du cimetière du Père Lachaise, véritable réservoir de biodiversité, le projet participe à la continuité écologique locale en facilitant les déplacements de la faune. Des aménagements spécifiques (strates végétales diversifiées, refuges pour la faune) viennent renforcer cette dynamique.

Une construction bas carbone et performante
La structure du bâtiment associe des poteaux en bois, des planchers en CLT et du béton de chanvre, garantissant à la fois une excellente inertie thermique et un faible impact environnemental.
Le recours à des matériaux biosourcés, des balcons indépendants et une préfabrication optimisée contribue à une démarche constructive durable, visant les objectifs ambitieux de la RE2020 seuil 2028.
