Le projet des îlots Migaux et Galvani s’inscrit aujourd’hui comme une pièce structurante du renouvellement urbain du quartier. Pensés en continuité l’un avec l’autre, ils participent pleinement à l’émergence d’un nouveau lieu de vie, transformant une ancienne zone d’activités à dominante industrielle en un tissu urbain mixte, habité et animé.

SCHEMAS DE PRINCIPE DU PROJET :






Véritables jalons du développement du quartier, ces deux îlots contribuent à définir une identité architecturale et paysagère forte, fondée sur la qualité des espaces à vivre et la diversité des usages. Là où dominaient auparavant entrepôts et locaux d’activités, s’affirme désormais une urbanité plus ouverte, accueillante et évolutive.
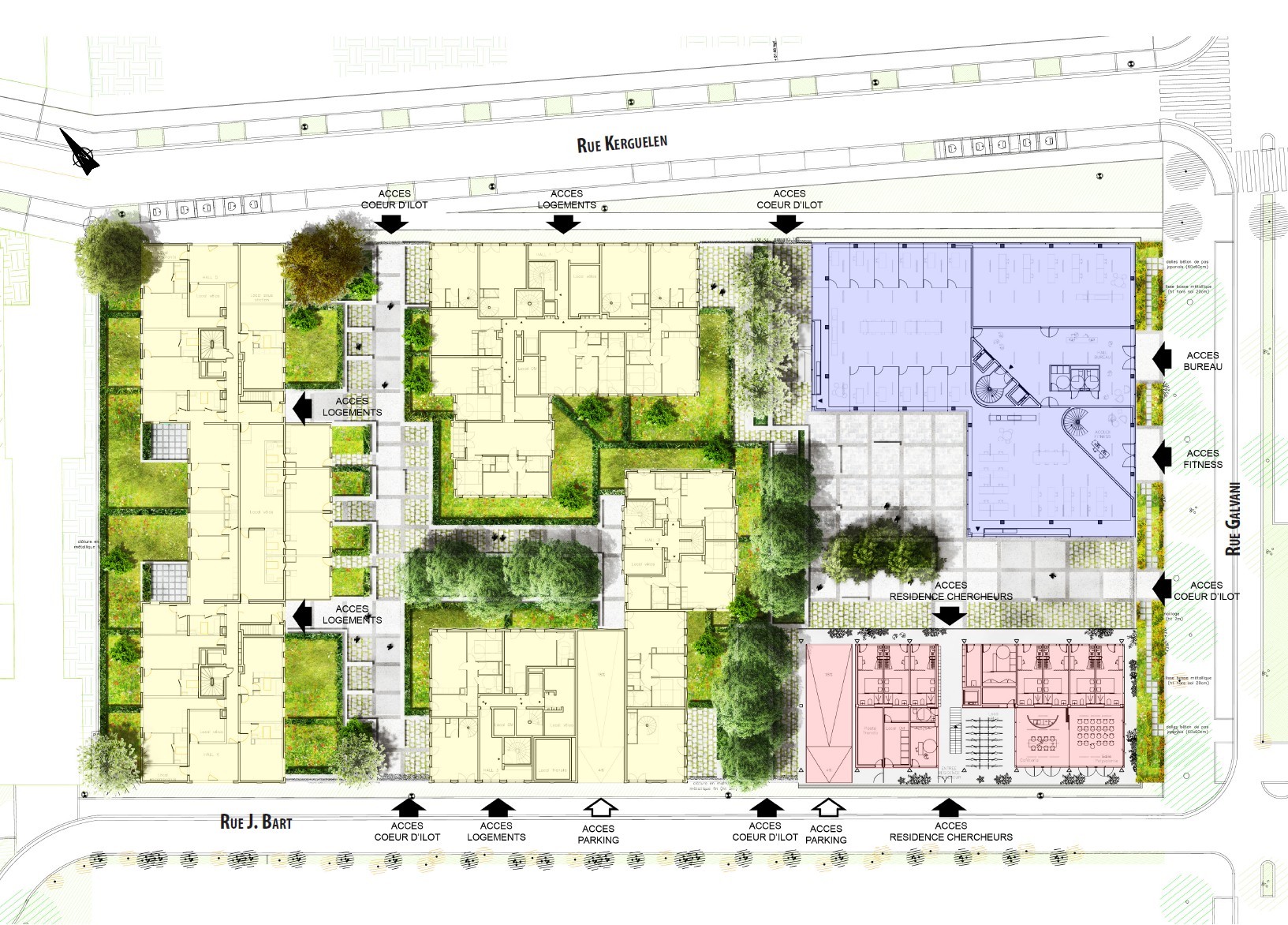
PLAN MASSE ILOT GALVANI + ILOT MIGAUX :



L’îlot Galvani accueille un programme mixte associant logements, résidence pour chercheurs, hôtel et bureaux. Les bâtiments dialoguent entre eux et avec leur environnement immédiat, en développant des rez-de-chaussée actifs tournés vers l’espace public et le cœur d’îlot. Le paysage y accompagne cette diversité programmatique à travers trois séquences complémentaires : une ouverture généreuse sur la rue, des jardins privatifs plus intimes en rez-de-chaussée, et un mail planté qui dilate l’espace et structure les circulations.
Sur l’îlot Migaux, l’enjeu majeur a été de créer une véritable perméabilité urbaine. Le projet permet aujourd’hui une traversée claire et lisible de l’îlot, offrant un nouveau cheminement au cœur du quartier. Cette porosité, pensée dès l’origine, favorise les usages quotidiens et les appropriations spontanées par les habitants comme par les usagers. Cette traversée s’organise autour d’un axe direct, visible et accessible, qui vient se conclure sur une placette centrale. Cet espace constitue un lieu de rencontre et de respiration au sein de l’îlot. Malgré la présence d’un parking en infrastructure, des zones de pleine terre ont été préservées et intégrées afin de permettre la plantation d’arbres de haute tige, assurant ainsi une véritable qualité paysagère et un confort d’usage.
Le projet paysager privilégie des essences adaptées au contexte local, favorisant la résilience écologique et limitant les besoins d’entretien. L’ensemble compose aujourd’hui un cadre de vie durable, où architecture et paysage participent conjointement à la transformation du site en un quartier vivant et attractif.


UN PROJET ARCHITECTURALEMENT RICHE :

PHOTOS DE L’ILOT GALVANI :




